建築系検索エンジンKenKen!

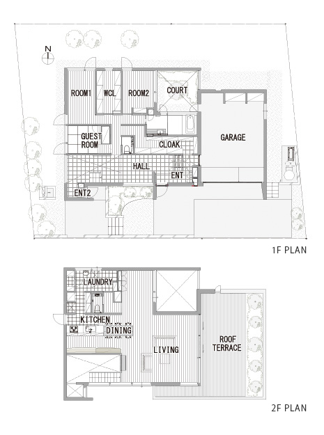
ソラテラス

ソラテラス|ワークスリスト|TAO建築設...

ソラテラス

ソラテラス

TAO建築設計

タイトル
TAO建築設計
概要
札幌のTAO建築設計主催による、これから自分仕様の住まいを建てようと考えている人の為のページ。...北海道・札幌の住宅等を手がける建築家。TAO建築設計。顔が見える。体温を感じあえる。そんな建築設計の仕事を大切にしています。
ホームページアドレス
http://www.taokenchiku.com/
クチコミ・評判
TAO建築設計 のクチコミ・評判0/5 (0件のレビュー)
TAO建築設計 のクチコミ・評判
都道府県
北海道
市区町村
札幌市
カテゴリー
設計・デザイン建築設計事務所
登録日

268,932

Works & Projects

カムイノヒラヤ
タカサゴコート
イヌネコニワノイエ
TOMATO COURT
VOID COURT
□-HOUSE
NAGAYA
マルヤマテラスコート
D-COURT
MAGARIYA
Z HOUSE
ヤマノテコート
T-COURT
十勝整形外科クリニック
ガレージコート
Re:YA邸(ユキヤナギノイエ)
囲み庭の家
Re・K邸
手稲高台の2世帯の家
イナホコート
ヤケイコート
ソラテラス
4+2+1+1コート
YOSEMUNE
NAMIYA
FUTAMUNE
オオヤネコート
モコトコート

※このページは、登録データを元にコンピュータ プログラムにより自動収集・生成されています。