建築系検索エンジンKenKen!

ヤマノテコート

ヤマノテコート|ワークスリスト|TAO建...

ヤマノテコート

ヤマノテコート

TAO建築設計

タイトル
TAO建築設計
概要
札幌のTAO建築設計主催による、これから自分仕様の住まいを建てようと考えている人の為のページ。...北海道・札幌の住宅等を手がける建築家。TAO建築設計。顔が見える。体温を感じあえる。そんな建築設計の仕事を大切にしています。
ホームページアドレス
http://www.taokenchiku.com/
クチコミ・評判
TAO建築設計 のクチコミ・評判0/5 (0件のレビュー)
TAO建築設計 のクチコミ・評判
都道府県
北海道
市区町村
札幌市
カテゴリー
設計・デザイン建築設計事務所
登録日

271,518

Works & Projects

カムイノヒラヤ
タカサゴコート
イヌネコニワノイエ
2Fリビングからテラス越しに中庭を望む。<br>右手奥はワークスペース、TATAMI ROOMへと続く。
TOMATO COURT
リビング奥よりのキッチン、ダイニング見返し。
2Fダイニングよりキッチン、リビングを望む。
VOID COURT
□-HOUSE
極上のほぐし処 ほそかわ
南西角からの建物全景。カーポート上に太陽光パネルを目立たない様に設置している。
NAGAYA
マルヤマテラスコート
D-COURT
MAGARIYA
道路よりの南側外観。外壁のスリットの向う側は中庭となっている。
Z HOUSE
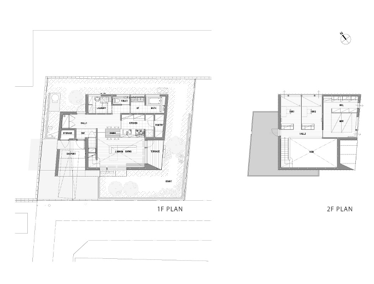
ヤマノテコート
山の手テラスコート
カムイノヒラヤ
エントランスホールよりの2F見上げ。<br>水廻りの動線を階段脇の壁で分離することにより、<br>ホールをすっきりとまとめている。
T-COURT
 ソラハコノイエ
十勝整形外科クリニック
ガレージコート
Re:YA邸(ユキヤナギノイエ)
囲み庭の家
Re・K邸

※このページは、登録データを元にコンピュータ プログラムにより自動収集・生成されています。