建築系検索エンジンKenKen!

PHYEON

PHYEON | WORKS | Air...

PHYEON

PHYEON

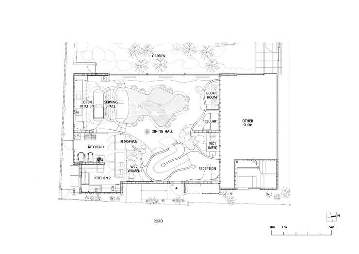
Menu CONTACT HOME CONCEPT WORKS ON GOING PUBLICATIONS FAQ ABOUT BLOG WORKS TOPページ WORKS PHYEON PHYEON ※外観建物は既存 「自然と永遠を再定...

[ 続きを読む ]

\ この情報をシェアする /

AIRHOUSE DESIGN OFFICE

タイトル
AIRHOUSE DESIGN OFFICE
概要
住まいが変わると生活が変わります。新しい豊かさを共有しましょう!若いスタッフが中心に働いておりますのでお気軽にご相談いただけたらと思います。
ホームページアドレス
http://www.airhouse.jp
クチコミ・評判
AIRHOUSE DESIGN OFFICE のクチコミ・評判0/5 (0件のレビュー)
AIRHOUSE DESIGN OFFICE のクチコミ・評判
都道府県
岐阜県
市区町村
大垣市
カテゴリー
設計・デザイン建築設計事務所
登録日

203,552

Works & Projects

PHYEON
PHYEON
PHYEON
PHYEON
PHYEON
PHYEON
※外観建物は既存
※外観建物は既存
PHYEON
PHYEON
PHYEON
PHYEON
PHYEON
PHYEON
PHYEON
PHYEON
PHYEON
PHYEON
PHYEON
PHYEON
PHYEON
PHYEON
PHYEON
PHYEON
PHYEON
PHYEON
PHYEON
PHYEON

※このページは、登録データを元にコンピュータ プログラムにより自動収集・生成されています。