建築系検索エンジンKenKen!

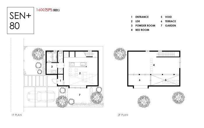
SEN+ 80mプラン

住宅設計 1000万円台で建てる家 SE...

SEN+ 80mプラン

SEN+ 80mプラン

Top PROJECTS施工事例 PROCESS設計の流れ ABOUT会社概要 CONTACTお問合せ -- 金田圭二建築設計事務所 大阪の北摂を拠点に住宅・店舗・ビルのデザインや設計監理をおこなう一級建築士事務所です。 2012 l pr...

[ 続きを読む ]

Keiji Kanada Architect Associates

タイトル
Keiji Kanada Architect Associates
概要
大阪の設計事務所です。...大阪の北摂で建築設計・住宅設計のデザインや設計監理をする一級建築士による設計事務所。厳しい条件の住宅でもそれぞれにふさわしい設計を行います。増改築や土地探しのご相談も承っています
ホームページアドレス
http://www.kkaalab.com
クチコミ・評判
Keiji Kanada Architect  Associates のクチコミ・評判0/5 (0件のレビュー)
Keiji Kanada Architect Associates のクチコミ・評判
都道府県
大阪府
カテゴリー
設計・デザイン建築設計事務所
登録日

246,567

Works & Projects

SEN+ 120mプラン
SEN+ 100mプラン
SEN+ 80mプラン
SEN+ 80mプラン
SEN+ 80mプラン
SEN+ 120mプラン
SEN+ 100mプラン
SEN+ 100mプラン
SEN+ 120mプラン

※このページは、登録データを元にコンピュータ プログラムにより自動収集・生成されています。