建築系検索エンジンKenKen!

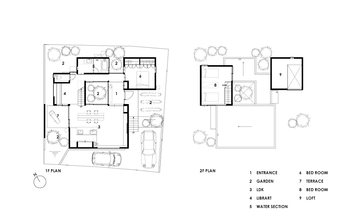
はつが野の家 平面PLAN

住宅設計 はつが野の家 大阪 金田圭二建...

はつが野の家 平面PLAN

はつが野の家 平面PLAN

Top PROJECTS施工事例 PROCESS設計の流れ ABOUT会社概要 CONTACTお問合せ -- 金田圭二建築設計事務所 大阪の北摂を拠点に住宅・店舗・ビルのデザインや設計監理をおこなう一級建築士事務所です。 ha-house ...

[ 続きを読む ]

Keiji Kanada Architect Associates

タイトル
Keiji Kanada Architect Associates
概要
大阪の設計事務所です。...大阪の北摂で建築設計・住宅設計のデザインや設計監理をする一級建築士による設計事務所。厳しい条件の住宅でもそれぞれにふさわしい設計を行います。増改築や土地探しのご相談も承っています
ホームページアドレス
http://www.kkaalab.com
クチコミ・評判
Keiji Kanada Architect  Associates のクチコミ・評判0/5 (0件のレビュー)
Keiji Kanada Architect Associates のクチコミ・評判
都道府県
大阪府
カテゴリー
設計・デザイン建築設計事務所
登録日

245,902

Works & Projects

はつが野の家 ファサード
はつが野の家 間接照明のあるリビング
はつが野の家 リビング
はつが野の家 中庭の見えるリビング
はつが野の家 キッチンとダイニング
はつが野の家 オーダーテーブル
はつが野の家 玄関と中庭
はつが野の家 夜景
伊賀上野の家のリビング
伊賀上野の家のコンクリート打ち放しと白い箱のファサード
伊賀上野の家の夜景
伊賀上野の家のプランニング
はつが野の家 平面PLAN
はつが野の家 菜園
はつが野の家 子供部屋
はつが野の家 玄関
はつが野の家 ダイニング
はつが野の家 大きな窓のあるリビング
伊賀上野の家の浴室
伊賀上野の家2階の吹抜けと廊下
千里中央の家の平面図
はつが野の家 庭のある浴室
はつが野の家 木製の階段
はつが野の家 書斎
はつが野の家 ロフトのある寝室
伊賀上野の家の黒いタイル貼りの玄関
はつが野の家 洗面
はつが野の家 寝室

※このページは、登録データを元にコンピュータ プログラムにより自動収集・生成されています。