http://www.yanase-arc.com/house/nttei/
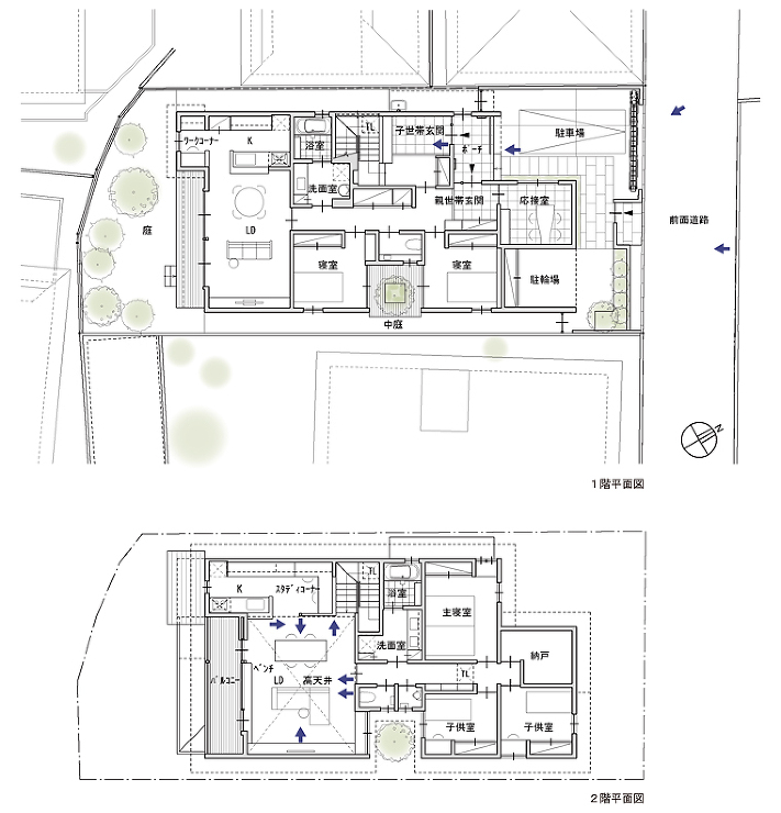
《2023年10月》 木造2階建 / 敷地・245.60 ? 延床・222.95 ? 施工 株式会社 若杉建設 写真 Blitz studio 1階を親世帯、2階を子世帯とした2世帯住宅である。 敷地は、閑静な住宅地。東西の隣地には敷地境界...
[ 続きを読む ]
\ この情報をシェアする /
0/5 (0件のレビュー)446,178


















※このページは、登録データを元にコンピュータ プログラムにより自動収集・生成されています。