建築系検索エンジンKenKen!

ぐりっぷ建築設計事務所【仕事】森の家

ぐりっぷ建築設計事務所【仕事】森の家

ぐりっぷ建築設計事務所【仕事】森の家

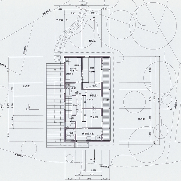
森の家 計画地・長野県千曲市 敷地面積・1040.00?u 延床面積・ 130.85?u 構造・規模・木造2階建て 計画・2008年10月 古い農村集落にある広い敷地は、新たに通った県道に切り取られ、いびつな形をしていました。 「家の形はシ...

[ 続きを読む ]

ぐりっぷ建築設計事務所

タイトル
ぐりっぷ建築設計事務所
概要
住宅を中心に各種建物の設計監理を行う長野県千曲市の設計事務所...緑川直彦+緑川淳子/ぐりっぷ建築設計事務所のホームページ
ホームページアドレス
http://grip-a.sakura.ne.jp
クチコミ・評判
ぐりっぷ建築設計事務所 のクチコミ・評判0/5 (0件のレビュー)
ぐりっぷ建築設計事務所 のクチコミ・評判
都道府県
長野県
市区町村
千曲市
カテゴリー
設計・デザイン建築設計事務所
登録日

134,653

Works & Projects

ぐりっぷ建築設計事務所【仕事】雨宮の家 /works_page/project/P22amenomiya/img/p22_01plan1_1_1.jpg
ぐりっぷ建築設計事務所【仕事】雨宮の家 /works_page/project/P22amenomiya/img/P22_05sec1_1_1.jpg
ぐりっぷ建築設計事務所【仕事】中之条の家 /works_page/houses/job007/img/007_03minamigaikan.jpg
ぐりっぷ建築設計事務所【仕事】通り庭の家 /works_page/project/P23living15/img/p23_08ima01.jpg
ぐりっぷ建築設計事務所【仕事】雨宮の家 /works_page/project/P22amenomiya/img/p22_06sec2_1_1.jpg
ぐりっぷ建築設計事務所【仕事】雨宮の家 /works_page/project/P22amenomiya/img/p22_02plan2_1_1.jpg
ぐりっぷ建築設計事務所【仕事】十夜河原の... /works_page/houses/job008/img/008_09momiji.jpg
ぐりっぷ建築設計事務所【仕事】中之条の家 /works_page/houses/job007/img/007_01kitagaikan.jpg
ぐりっぷ建築設計事務所【仕事】倉科の家 /works_page/houses/job012/img/012_04approach3.jpg
ぐりっぷ建築設計事務所【仕事】倉科の家 /works_page/houses/job012/img/012_02gaikan2.jpg
ぐりっぷ建築設計事務所【仕事】森の家 /works_page/project/p25mori/img/p25_02_1f_plan.jpg
ぐりっぷ建築設計事務所【仕事】十夜河原の... /works_page/houses/job008/img/008_18hiroen.jpg
ぐりっぷ建築設計事務所【仕事】住み継ぐ家 /works_page/houses/job005/img/genkan12.jpg
ぐりっぷ建築設計事務所【仕事】森の家 /works_page/project/p25mori/img/p25_03_2f_plan.jpg
ぐりっぷ建築設計事務所【仕事】倉科の家 /works_page/houses/job012/img/012_03nisigaikan.jpg
ぐりっぷ建築設計事務所【仕事】雨宮の家 /works_page/project/P22amenomiya/img/p22_03plan3_1_1.jpg
ぐりっぷ建築設計事務所【仕事】通り庭の家 /works_page/project/P23living15/img/p23_01plan1F.jpg
ぐりっぷ建築設計事務所【仕事】三輪返目の... /works_page/houses/job019/img/019_17yakei2.jpg
ぐりっぷ建築設計事務所【仕事】雨宮の家 /works_page/project/P22amenomiya/img/p22_04elv1_1_1.jpg
ぐりっぷ建築設計事務所【仕事】住み継ぐ家 /works_page/houses/job005/img/005_2genkan.jpg
ぐりっぷ建築設計事務所【仕事】中之条の家 /works_page/houses/job007/img/naikan13.jpg
ぐりっぷ建築設計事務所【仕事】森の家 /works_page/project/p25mori/img/p25_06ima1.jpg
ぐりっぷ建築設計事務所【仕事】通り庭の家 /works_page/project/P23living15/img/p23_02plan2F.jpg
ぐりっぷ建築設計事務所【仕事】森の家 /works_page/project/p25mori/img/p25_04sec.jpg
ぐりっぷ建築設計事務所【仕事】吉田の家 /works_page/project/P05yosida/img/p05_04b_nakaniwa.jpg
ぐりっぷ建築設計事務所【仕事】西尾張部の... /works_page/project/p24nisiowaribe/img/p24_05sec.jpg
ぐりっぷ建築設計事務所【仕事】十夜河原の... /works_page/houses/job008/img/008_04yuukei.jpg
ぐりっぷ建築設計事務所【仕事】十夜河原の... /works_page/houses/job008/img/008_05doma.jpg

※このページは、登録データを元にコンピュータ プログラムにより自動収集・生成されています。