建築系検索エンジンKenKen!

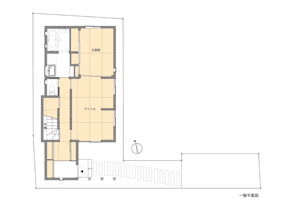
本多の家

本多の家 有限会社ますいいリビングカンパ...

本多の家

本多の家

\ この情報をシェアする /

ますいいリビングカンパニー

タイトル
ますいいリビングカンパニー
概要
工務店機能を持つ設計事務所です。自然素材やセルフビルドを取り入れながらローコストでデザイン性のある住宅を作ります。
ホームページアドレス
http://www.masuii.co.jp
クチコミ・評判
ますいいリビングカンパニー のクチコミ・評判0/5 (0件のレビュー)
ますいいリビングカンパニー のクチコミ・評判
都道府県
埼玉県
市区町村
川口市
カテゴリー
建築施工建設会社・工務店
登録日

383,859

Works & Projects

喜多見の家
喜多見の家
本多の家
本多の家
本多の家
本多の家
越谷の家
越谷の家
越谷の家
越谷の家
越谷の家
幸町の家
幸町の家
幸町の家
幸町の家
喜多見の家
喜多見の家
喜多見の家
幸町の家
喜多見の家
喜多見の家
大谷口の家
大谷口の家
漆喰と土壁のぬくもりの家
大谷口の家
大谷口の家
大谷口の家
大谷口の家

※このページは、登録データを元にコンピュータ プログラムにより自動収集・生成されています。