建築系検索エンジンKenKen!

事例 | 大野建築設計事務所

事例 | 大野建築設計事務所

事例 | 大野建築設計事務所

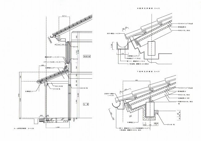
ホーム 現場レポート 実例 プロフィール 仕事の流れ ダイアリー お問い合わせ トップ 事例 文化財 若森家(別棟) 1、2階平面図 立面図 断面図 矩形図 修理前 下屋部分が改造されており、妻面は人造石洗い出し仕上げになっていた。 修理後...

[ 続きを読む ]

\ この情報をシェアする /

大野建築設計事務所

タイトル
大野建築設計事務所
概要
住宅、住宅リフォーム、一般建築、店舗、伝統建築物の設計監理
ホームページアドレス
http://www.cometweb.ne.jp/~oono/
クチコミ・評判
大野建築設計事務所 のクチコミ・評判0/5 (0件のレビュー)
大野建築設計事務所 のクチコミ・評判
都道府県
富山県
市区町村
高岡市
カテゴリー
設計・デザイン建築設計事務所
登録日

483,365

Works & Projects

事例 | 大野建築設計事務所 works/residential/b03/photo30.jpg
事例 | 大野建築設計事務所 works/culturalproperty/c14/photo32.jpg
事例 | 大野建築設計事務所 works/culturalproperty/c08/photo24.jpg
事例 | 大野建築設計事務所 works/culturalproperty/c12/photo24.jpg
事例 | 大野建築設計事務所 works/culturalproperty/d01/photo30.jpg
事例 | 大野建築設計事務所 works/culturalproperty/c01/photo28.jpg
事例 | 大野建築設計事務所 works/culturalproperty/c04/photo30.jpg
事例 | 大野建築設計事務所 works/culturalproperty/c05/photo34.jpg
事例 | 大野建築設計事務所 works/residential/b03/photo03.jpg
事例 | 大野建築設計事務所 works/residential/a15/photo18.jpg
事例 | 大野建築設計事務所 works/residential/b03/photo01.jpg
事例(一般住宅・店舗建築) | 大野建築... works/store/a21/photo15.jpg
事例 | 大野建築設計事務所 works/residential/a37/photo17.jpg
事例(sketch4) | 大野建築設計... works/sketch/sketch04/photo06.jpg
事例 | 大野建築設計事務所 works/residential/a25/photo31.jpg
事例 | 大野建築設計事務所 works/residential/a23/photo33.jpg
事例(一般住宅・店舗建築) | 大野建築... works/store/a13/photo01.jpg
事例(一般住宅・店舗建築) | 大野建築... works/store/a23/photo02.jpg
事例 | 大野建築設計事務所 works/culturalproperty/E03/photo01.jpg
事例 | 大野建築設計事務所 works/residential/b03/photo02.jpg
事例 | 大野建築設計事務所 works/culturalproperty/c05/photo31.jpg
事例 | 大野建築設計事務所 works/residential/a24/photo25.jpg
事例(一般住宅・店舗建築) | 大野建築... works/store/a21/photo16.jpg
事例 | 大野建築設計事務所 works/culturalproperty/c14/photo29.jpg
事例(sketch4) | 大野建築設計... works/sketch/sketch04/photo01.jpg
事例 | 大野建築設計事務所 works/culturalproperty/c12/photo23.jpg
事例 | 大野建築設計事務所 works/residential/a25/photo30.jpg
事例(sketch4) | 大野建築設計... works/sketch/sketch04/photo07.jpg

※このページは、登録データを元にコンピュータ プログラムにより自動収集・生成されています。