建築系検索エンジンKenKen!

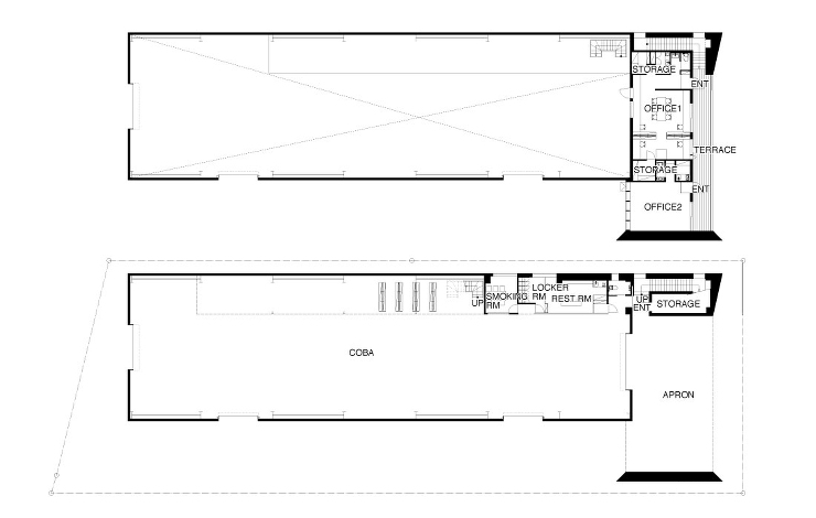
KUMABAN KOBA

KUMABAN KOBA|ワークスリスト...

KUMABAN KOBA

KUMABAN KOBA

TAO建築設計

タイトル
TAO建築設計
概要
札幌のTAO建築設計主催による、これから自分仕様の住まいを建てようと考えている人の為のページ。...北海道・札幌の住宅等を手がける建築家。TAO建築設計。顔が見える。体温を感じあえる。そんな建築設計の仕事を大切にしています。
ホームページアドレス
http://www.taokenchiku.com/
クチコミ・評判
TAO建築設計 のクチコミ・評判0/5 (0件のレビュー)
TAO建築設計 のクチコミ・評判
都道府県
北海道
市区町村
札幌市
カテゴリー
設計・デザイン建築設計事務所
登録日

261,391

Works & Projects

Re:YA邸(ユキヤナギノイエ)
Re:YA邸(ユキヤナギノイエ)
囲み庭の家
ウラニワコート
SKIP COURT
カメニワノイエ
JIN COURT
Re:HA邸
Re:HA邸
LINE COURT
レンソウノニワヤ
2Fテラスコート。外部階段で1Fのバスコートとつながっている。
南東側外観夕景。北側に円山を擁する。
KUMABAN KOBA
ZUREYA
南よりの外観夕景。2Fテラスコートの雰囲気が道路よりわずかに窺える。
西側道路よりの外観夕景。北側コートのルーバーは2Fリビングより円山が見える様注意深く高さを検討した。
2Fテラスコートと一体となったリビングダイニング。
リビングよりのダイニング、キッチン見返し。奥には30cm程床レベルを上げた書斎をもつ。
のびやかなバスコートとつながるオープンなバスルーム。
Re:HA邸
1Fエントランスホール。左手と奥にしつらえた性格の異なる中庭へと視線が抜ける。
Re:YA邸(ユキヤナギノイエ)
囲み庭の家
Amejika
ヤケイノハコ
クミバコノイエ(HAKO/11)
モリノイエ(HAKO/09)

※このページは、登録データを元にコンピュータ プログラムにより自動収集・生成されています。