建築系検索エンジンKenKen!

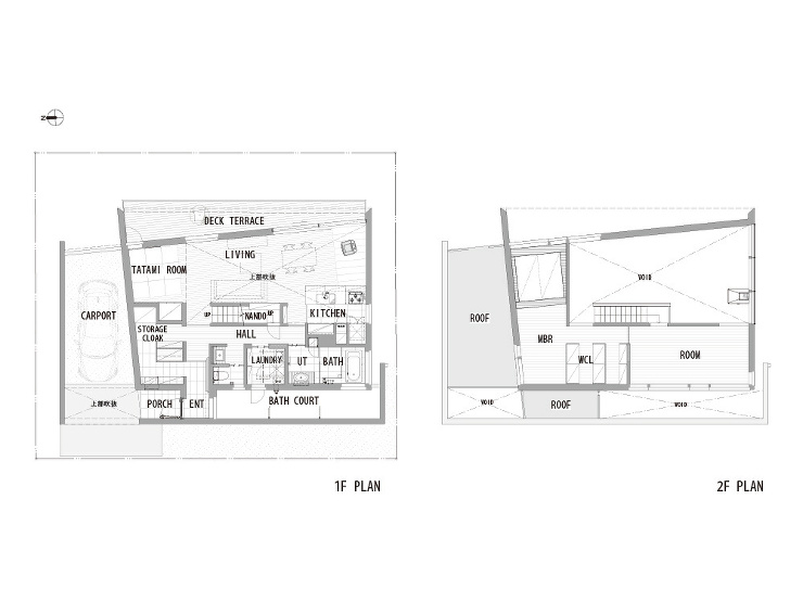
モリニワノイエ

モリニワノイエ|ワークスリスト|TAO建...

モリニワノイエ

モリニワノイエ

TAO建築設計

タイトル
TAO建築設計
概要
札幌のTAO建築設計主催による、これから自分仕様の住まいを建てようと考えている人の為のページ。...北海道・札幌の住宅等を手がける建築家。TAO建築設計。顔が見える。体温を感じあえる。そんな建築設計の仕事を大切にしています。
ホームページアドレス
http://www.taokenchiku.com/
クチコミ・評判
TAO建築設計 のクチコミ・評判0/5 (0件のレビュー)
TAO建築設計 のクチコミ・評判
都道府県
北海道
市区町村
札幌市
カテゴリー
設計・デザイン建築設計事務所
登録日

263,769

Works & Projects

Re:YA邸(ユキヤナギノイエ)
Re:YA邸(ユキヤナギノイエ)
囲み庭の家
カワギシノイエ
北庭よりテラス越しにリビングを望む。<br>建物側奥のコートはカーポートへの回遊導線となっている。
東より南庭を望む。<br>南庭は札幌軟石を置敷しており、<br>サクラ・ヤマモミジ・ヤマボウシ・シャラ等の雑木を内部からの景色を考え配している。
北西からの外観夕景。<br>上階エントランスには階段以外に西側スロープからのアプローチも可能とした。
ウラニワコート
HUXUE (フーシェ)
SKIP COURT
カメニワノイエ
夜半外観夕景。<br>建物がライトアップされ、軽やかに浮かび上がる。
JIN COURT
4 BOX COURT
Re:HA邸
Re:HA邸
LINE COURT
モリニワノイエ
3 BOX COURT
レンソウノニワヤ
正面外観夕景。<br>上階内部の間仕切は全て構造から切り離されたブースとなっている。<br>アプローチ階段同様南側道路からの視線は北側円山の景色へと抜ける様意図した。
boiler
アシストオフィス
2Fテラスコート。外部階段で1Fのバスコートとつながっている。

※このページは、登録データを元にコンピュータ プログラムにより自動収集・生成されています。